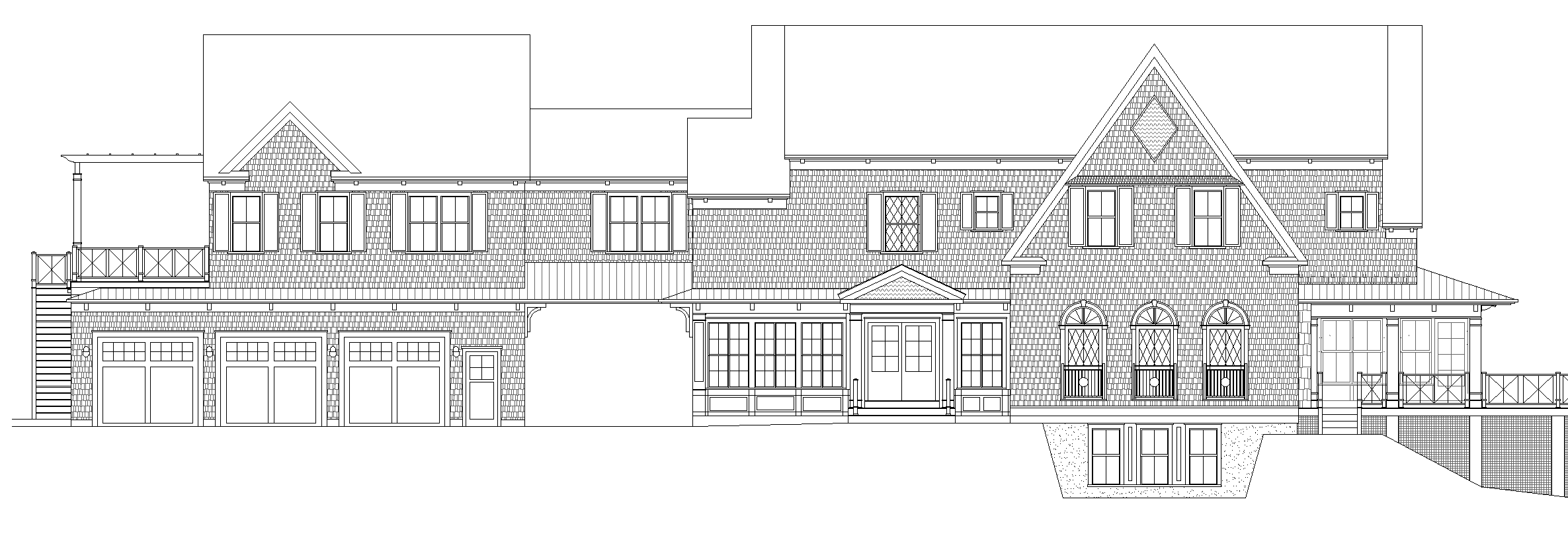
Forever Home - South Shore, MA

may 2025

“Sometimes a dream project comes along and you get to do something really fun. This Forever Home on a beachfront lot on the South Shore of Massachusetts is being built for a close family friend. Clients need creativity, good design and good process. The best ideas that are the most generative tend to come from them. Taking those ideas and putting together a team of professionals is always my approach to starting and finishing a great project.

With Hawthorn Builders

Back to Architecture